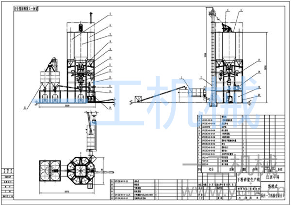
全塔式干粉砂漿生產線是將生產干粉砂漿的全部原材料,包含不同粒徑的骨料,各品種的膠凝材料,混合材料及各種功能性添加劑,都儲存在塔樓的頂部,下面依次布置計量稱、混合機、成品斗、散裝機和包裝機等,共同形成高塔結構。砂子分級在砂倉頂部完成,不同粒徑的砂子分別靠重力流入相應的筒倉儲存。高塔式布置的干粉砂漿生產線,最大特點是生產干粉砂漿的原料都是依靠自身重力向下流動,物料流動路程短,流動時間短,設備磨損小,運行流暢,連接點以封閉,揚塵情況大幅降低。

全塔式干粉砂漿生產線圖紙
江西中科建材預備干混砂漿生產線頂置5分隔大砂倉和8只粉料倉。經過烘干的砂子通過提升機提到塔樓的頂部分開,砂子可以直接進入筒倉,也可以進入分級篩,將砂子按粒徑大小分別進倉。倉底出口配弧形喂料閥往砂秤里給料。粉體用螺旋輸送機往粉料秤里喂料。大筒倉的下方設置小料倉存放添加劑,添加劑單獨設秤以提高計量精度。外加劑由貨梯運送到需要的高度,人工加入小料倉。利用塔樓布局物料易輸送的優勢,砂漿攪拌選用高效砂漿混合機。該生產線有直接裝車功能,還有4只散裝砂漿儲存罐備用。

中科建材干粉砂漿生產線
上一篇:地面皮帶秤布置干混砂漿生產線
蘇州一工機械有限公司蘇ICP備05086008號-1全國服務熱線:13906202820(杜工)